• Accueil
  • Agence
  • Nos projets écologiques
  • Matériaux biosourcés
  • Contacts
Projet d'une extension par duramen
Extension

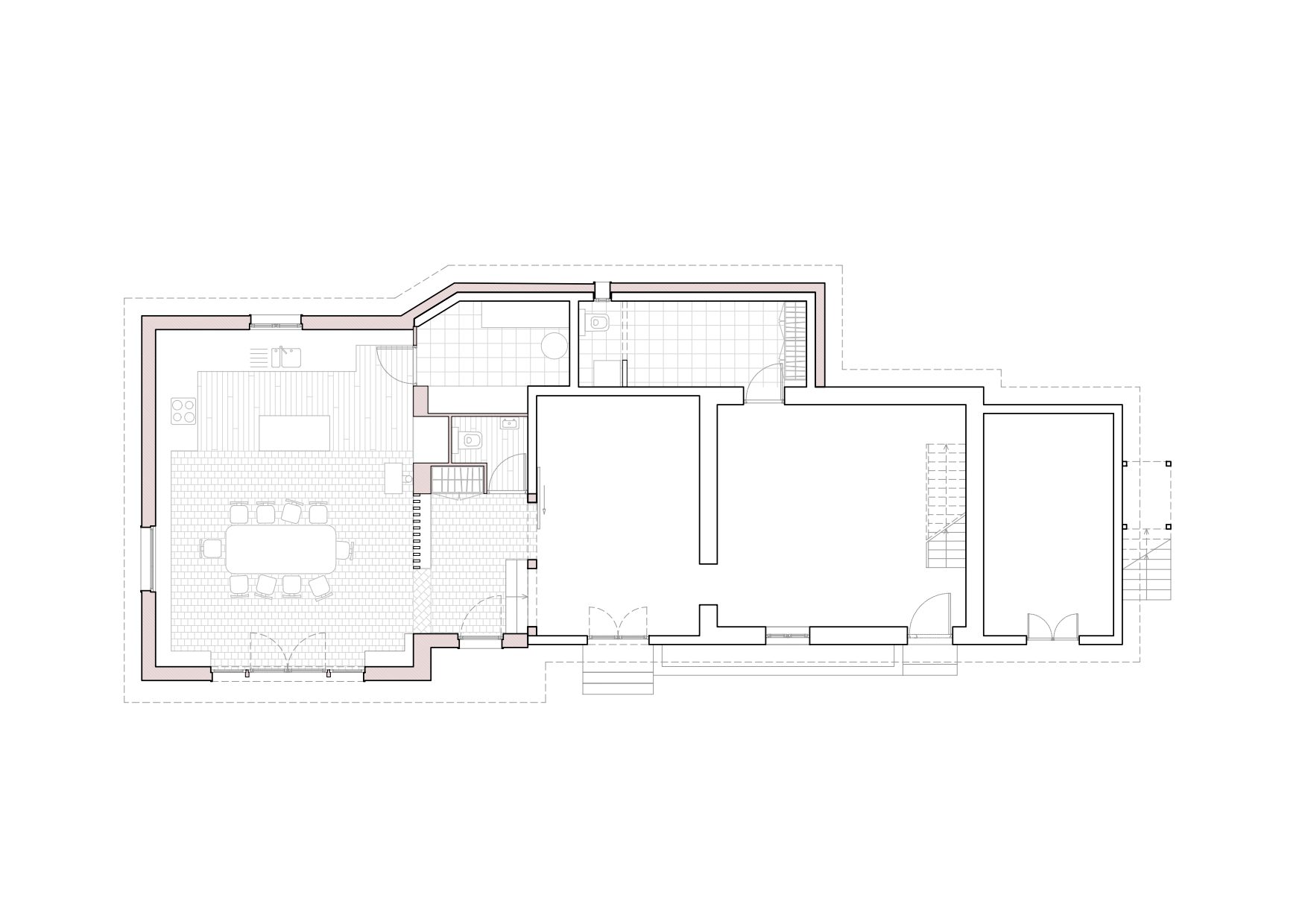
La Maison Beynat

Cette ancienne maison limousine se dote d’une grande pièce de vie en lieu et place d’un ancien appentis de tôle et parpaing.
Seul son sous-bassement de pierre est conservé comme socle pour la nouvelle construction en ossature bois, permettant d’inscrire son identité architecturale dans un langage traditionnel, en continuité avec la maison existante.

Localisation : Saint léonard de Noblat (87)
SHOB : 71.0m²
Surface de plancher : 59.0 m²
Maîtrise d’ouvrage : privée
Mission complète
Livraison : décembre 201

En détail
  • Matériaux
    • Sol :
      -dalle béton + isolant incompressible
      Murs :
      ossature bois isolé en laine de bois
      Toiture :
      -structure bois (faîtage LC) + poutre (steico) bois en I isolé en ouate de cellulose
      -couverture= tuiles canal en terre cuite
      Menuiseries extérieures : bois
  • Performances Thermiques
    • R toiture : 9.2
      R parois : 4.9
      R sol : 2.73
Projet d'une extension par duramen

Vue sur extension

Projet d'une extension par duramen

Vue sur extension

Projet d'une extension par duramen

Vue sur pignon

Plan de masse

Plan RDC

Coupe transversale

Coupe longitudinale

Détail coupe

DURAMEN ATELIER D'ARCHITECTURE
SRL 84792809000012

Mentions légales

Politique de confidentialité